Search

Leave

Thank you for your message. We will be in touch with you shortly.

Explore Our Properties

Property Description

NOTE: this unique opportunity will be structured as an LLC membership sale, through either seller financing or a cash purchase. Please inquire for details.

The building has 2 units. Monthly expenses are split with the downstairs unit owner and total approximately $450 per month, including property taxes, home insurance, garbage fees etc.

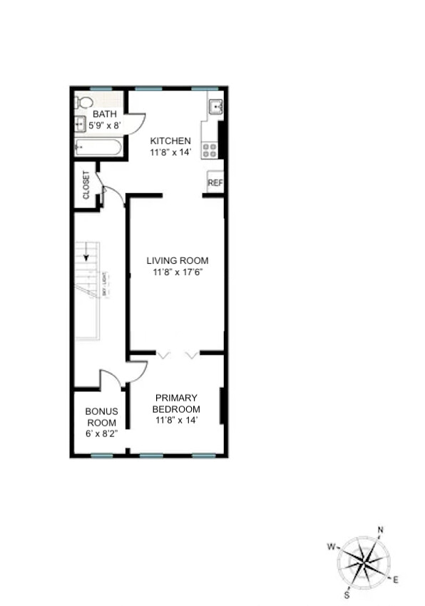
A rare Brooklyn industrial-chic loft. Meticulously renovated in 2024, this bright and airy third-floor unit pairs sleek upgrades with raw, textured details including exposed brick and semi-finished plaster walls, creating an unmistakably edgy draw.

11 foot ceilings, reclaimed hardwood floors, and oversized windows all bring bright and warm character, while the clean white cabinetry and modern fixtures strike a polished contrast. The versatile layout easily converts to 1.5 bedrooms, as previously done, or can be enjoyed in its expansive open-loft style. The thoughtfully appointed bathroom boasts a deep, custom soaking tub, heated floors and a washer & dryer. The stylish dine-in kitchen features patinated plaster walls, a double-wide sink, an integrated Bosch dishwasher and French-door refrigerator.

Energy efficient split AC units and European double pane windows provide optimal sound and climate insulation, while also lessening your energy consumption. The extra tall south and north-facing windows feature customized electric blackout blinds. The radiators were retrofitted with hot water, to avoid the clanking and over-drying aspects of original forced air radiators.

Located on a quiet residential block of Eastern Greenpoint, an area that offers a charming blend of historic appeal and creative energy. The tree-lined blocks are dotted with century-old townhouses, cozy cafés, and artisan bakeries, all just moments from Greenpoint and Williamsburg's buzzing scenes. On the corner of the block, stroll McGolrick Park's weekend farmers market and dog-friendly green space. McCarren Park is also within quick reach down the road. Nearby, the Nassau G train stop and the BQE allow for easy access around the boroughs.

Architectural design highlights:

- Top floor unit with 11 foot ceilings

- Reclaimed hardwood floors

- Handmade Portuguese tiles

- Swedish light fixtures

- Separate, bonus area perfect for an office setup, nursery, or additional storage

- Roof rights, with private access from the loft

Energy-efficient upgrades:

- European double pane windows

- Electric black out blinds

- 2 zone AC split units

- Retrofitted hot water radiators

- Nest thermostats

Appliances and fixtures:

- LG Washer & Dryer

- Bosch dishwasher

- French double door refrigerator

- Deep custom bathtub

- Heated bathroom floors

- Double-wide kitchen sink

Overview

Property Status
For Sale
MLS ID
RLS20053342
Property Type
Co-Op
Year Built
1901

Features & Amenities

Architecture Styles
Walk-Up
View Description
Other
Stories
3
Air Conditioning
Zoned
Other Exterior Features
Private Outdoor Space Over 60 Sqft
Sales Price
$1,000,000

Downloads

285A KINGSLAND Avenue 2

Schedule A Tour

Enter a valid email

Thank you

for your interest in 285A KINGSLAND Avenue 2, Brooklyn, NY 11222

back to page

Mortgage Calculator

Estimate your monthly mortgage payment, including the principal and interest, property taxes, and HOA. Adjust the values to generate a more accurate rate.
$0,000 Your Payment 20 15 65
$0,000 Your Payment

I'm Interested In

285A KINGSLAND Avenue 2

or
  • CallTricia Lee

    License #10301215044

    (917) 330-9737
  • 285A KINGSLAND Avenue 2
    Navigate